济南桥梁防抛网生产厂家
更新日期:2022-11-12 点击量:

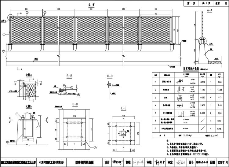
济南桥梁防抛网一般介绍:
1、立柱实心圆角方钢30*30mm;
2、边框U型管18*40*4mm;
3、钢板网40*70*4.0mm;
4、连接边耳T型钢40*55*15mm;
5、预埋螺栓Φ16mm;
6、预埋钢板176*176*10mm;
7、产品表面静电喷涂喷塑防腐工艺处理;
8、安装整体尺寸1.26*2.0米。
9、焊接构件,焊缝均应满足规范要求。
上一篇:高架桥防落物网生产厂家 下一篇:井场围栏及大门价格多少钱
相关新闻
- 2025-02-18道路护栏的保护方法
- 2023-05-16广州绕城高速公路防眩网项目
- 2023-05-16宁夏高速公路焊接网隔离栅技术图纸支持
- 2023-05-16G331线布尔津至哈巴河公路刺钢丝隔离栅图纸
- 2023-02-25监狱刀刺网围墙生产厂家




