人行道京式护栏价格多少钱一米
更新日期:2022-11-08 点击量:

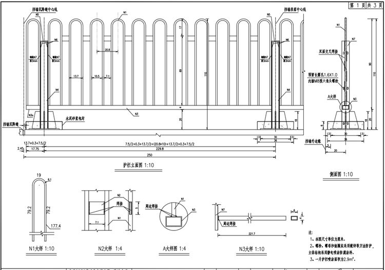
一、人行道京式护栏设计要求:
1、本图人行道京式护栏尺寸单位为厘米。
2、人行道京式护栏螺栓、螺母和垫圈应采用镀锌等方法防护,主体结构采用静电喷涂防腐涂料。
3、人行道京式护栏一片护栏喷涂面积为2.9㎡。
4、人行道京式护栏基础法兰盘的固定使用M16膨胀螺栓,螺栓施工前应进行抗拔试验,抗拔力大于30.0KN。
5、人行道京式护栏立柱安装好后,用水泥砂浆对基础法兰盘及膨胀螺栓进行包封处理,包封高度为8cm。
二、人行道京式护栏技术参数:
1、方管立柱75*75*4.8mm;
2、方管横管40*60*3.0mm;
3、实心方钢竖管16*16mm;
4、连接件扁钢71*50*8mm;
上一篇:汕头市人行道栏杆价格多少钱一米 下一篇:飞机场钢筋围界价格多少钱一米
相关新闻
- 2025-02-18道路护栏的保护方法
- 2023-05-16广州绕城高速公路防眩网项目
- 2023-05-16宁夏高速公路焊接网隔离栅技术图纸支持
- 2023-05-16G331线布尔津至哈巴河公路刺钢丝隔离栅图纸
- 2023-02-25监狱刀刺网围墙生产厂家




