铁路框架桥防落网生产厂家
更新日期:2022-11-08 点击量:

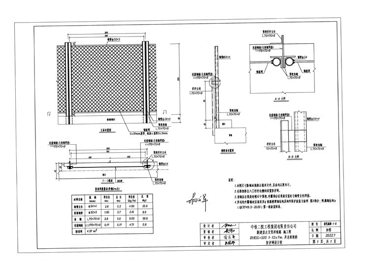
一、铁路框架桥防落网一般说明:
1.本图尺寸除钢材规格以毫米计外,其余均以厘米计。
2.在框架桥出入口栏杆内侧均设置防护网。
3.角钢应在现浇的帽石中预埋,外露部分在现场安装时与钢管支柱焊接。
4.所有的外露钢材应该采用《铁路桥梁钢结构及构件保护涂装与涂料 第3部分:附属钢结构》
( QCR749.3-2020) 第一套涂装体系。
二、铁路框架桥防落网参数要求:
1.钢管支柱Φ54*4mm;
2.框架钢管Φ32*3mm;
3.角钢75*75*8mm;
4.连接钢板170*75*8mm;
5.外形尺寸2*2.5米。
上一篇:北京至哈尔滨高速公路焊接网隔离栅厂家 下一篇:种植产业园浸塑围网价格多少钱一米
相关新闻
- 2025-02-18道路护栏的保护方法
- 2023-05-16广州绕城高速公路防眩网项目
- 2023-05-16宁夏高速公路焊接网隔离栅技术图纸支持
- 2023-05-16G331线布尔津至哈巴河公路刺钢丝隔离栅图纸
- 2023-02-25监狱刀刺网围墙生产厂家




