热镀锌浸塑金属防护网价格多少钱一米
更新日期:2022-11-11 点击量:

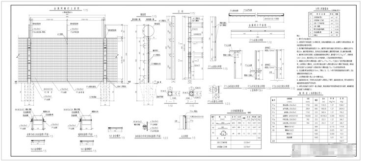
热镀锌浸塑金属防护网一般说明:
1、图中尺寸均以毫米计。
2、本图适用于封闭高度2.3m特殊区段,结构由钢筋混凝土立柱、金属网片与刺丝滚笼组成。剌丝滚笼图纸参通用参考图。
3、防护栅栏顶面距地面的高度为1.8m ,栅栏网片底部与地面之间空档为5cm,钢筋砼立柱中心距为3m。栅栏风阻面积较大,养护时应及时清除栅栏上藤蔓等阻风物体,防止栅栏侧向倾覆。
4、栅栏网片采用外层浸塑、内层整体热镀锌的电焊网片,镀锌量不少于270g/㎡ , 浸塑厚度0.8~1.2mm ,钢丝采用Q235B φ4冷拔钢丝,工艺标准按通用参考图执行。
5、钢筋砼立柱与网片以螺栓连接。边框P1a、P1b、P1c、P2应在工厂进行焊接后整体热镀锌;立柱预留φ12螺栓孔,立柱与网片通过边框P1a预留长圆孔以M10螺栓于现场连接;剌丝滚笼中间支架P3a与加劲肋P1c现场采用M10螺栓连接,P3a、P3b采用热浸锌处理。
6、尼龙垫圈(硬)标准厚度为10mm,可配6、8、12、14等不同厚度根据现场灵活调节。尼龙垫圈使用寿命须满足20年。
7、热镀锌浸塑金属防护网立柱预制时设置“禁止入内”的警示标志。
8、地面起伏较小时,可利用立柱及边框P1a预留孔上下调节;地面起伏较大时,网片边框采用与地面坡度相似角度的平行四边形。
9、本图立柱基础尺寸适用于一般土质地段,现场应根据不同因素影响进行设计检算,确保栅栏稳定的前提下合理调整尺寸。
相关新闻
- 2025-02-18道路护栏的保护方法
- 2023-05-16广州绕城高速公路防眩网项目
- 2023-05-16宁夏高速公路焊接网隔离栅技术图纸支持
- 2023-05-16G331线布尔津至哈巴河公路刺钢丝隔离栅图纸
- 2023-02-25监狱刀刺网围墙生产厂家




