您好!欢迎访问安平县秉德丝网制品有限公司网站!
logo

当前位置:网站首页 > 技术支持技术支持

桥梁菱形孔防抛网生产厂家

更新日期:2022-11-23  点击量:

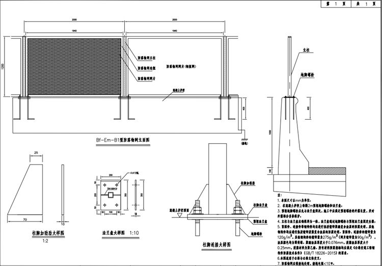
1防抛网布设原则
防抛网设置于分离式立交桥的两侧,防止抛落物对主线上或下穿重要道路上的车辆造成伤害。设置长
度应保证将下穿道路的行车道遮挡起来并向两侧延伸 10 米。在中央分隔带设置水平防落物网。防落物网固 定在桥梁的混凝土护栏上。
2防抛网结构类型
防抛网采用钢板网结构,钢板网为 2.5mm 厚整板加工而成,丝梗宽度为 2.5mm,网格尺寸为 22×
60mm,跨公路的防落物网网片高1.2m。网片焊接于角钢边框上。除紧固件、地脚螺栓、预埋法兰盘采用热浸镀锌处理外,其它构件均应进行涂塑处理,涂塑层颜色采用薄荷绿;防腐符合《公路交通工程钢构件防腐技术条件》GB/T18226-2015 的要求。
3防抛网技术要求及施工注意事项
(1) 钢板网安装时要求网面平整,无明显凹凸现象,边框与立柱应连接牢固,整体连接平顺。 
(2) 钢板网应先加工后涂塑,涂塑层应均匀、亮泽,涂层厚度为不小于0.38mm 
(3) 防抛网应做接地处理,接地电阻小于10Ω 
(4) 符合JTG F71-2006《公路交通安全设施施工技术规范》的要求。 
(5) 水平护网应先确定现场实际情况之后进行设置。

 


标签: