您好!欢迎访问安平县秉德丝网制品有限公司网站!
logo

当前位置:网站首页 > 技术支持技术支持

图纸定制高速公路隔离栅

更新日期:2022-12-05  点击量:


一、高速公路隔离栅设置区域
为防止人畜随意进入高速公路,保证车辆高速行驶和行车安全,保护公路设施的安全及公路用地界不被侵犯,原则上在沿线两侧的用地界线上均连续设置隔离栅进行封闭,隔离栅布设在公路两侧用地界以内0.25m处。为满足公路、桥梁和通道管理的需要,在适当位置设置便于开启以满足车辆或人员进出的隔离栅活动门。
二、高速公路隔离栅设置原则
1)高速公路沿线两侧符合下列条件之一者,不设置隔离设施:
1.路侧为水渠等天然屏障,人畜不能进入和非法侵占的区段。
2.路侧为高度大于1.5m 的挡土墙或砌石陡坡,人畜不能进入的区段。
3.桥梁(含高架桥)、通道等构造物,桥头隔离设施连接封死。
2)沿公路用地界以内设置的隔离设施,在遇桥梁、通道时,应朝桥头锥坡(或端墙)方向围死,不能留有人畜可以钻入的空隙。
3)由于地形方面的原因,隔离设施前后不能连续设置的地方,就以该处作为隔离设置的端部,并处理好端头的围封。
4)沿公路用地边界地形起伏较大、隔离设施不易施工的路段,可根据需要设置成一系列斜坡过渡的形式。
三、高速公路隔离栅结构型式
从经济实用的角度出发,凡经过城镇的路段、风景区和互通立交、服务设施范围内采用焊接网隔离栅,其余路段采用刺钢丝隔离栅。
四、高速公路隔离栅的材料
焊接网隔离栅采用Φ4mm 钢筋制作,网孔为 75×150mm;刺钢丝网隔离栅采用 12 号低碳钢丝制作,安装时采用防盗螺栓固定。焊接网隔离栅采用钢管立柱,刺钢丝网隔离栅均采用型钢立柱。所有隔离栅金属构件均采用热浸镀锌后再涂塑处理,颜色为果绿色(劳氏色卡 RAL 6029)。
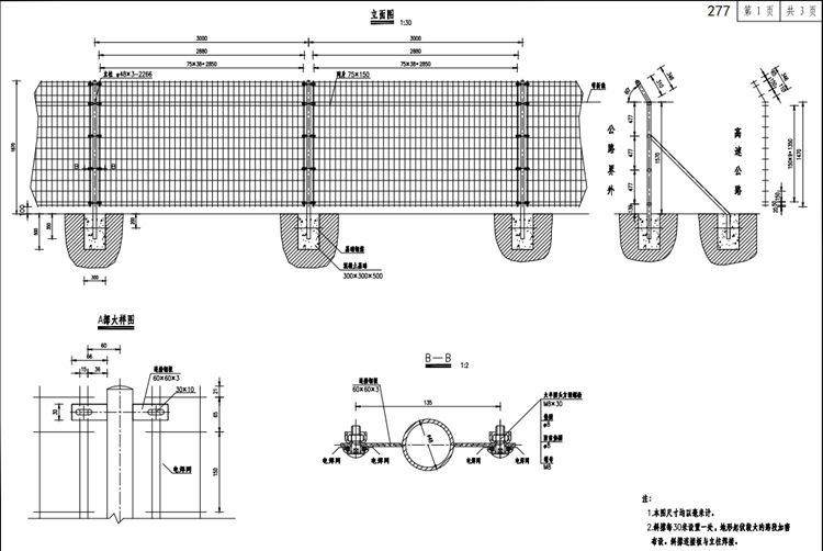
五、高速公路焊接网隔离栅详细说明
1.本图尺寸单位均以mm计。
2.电焊网单片加工尺寸为2880X1816,其拐角部分应一次折弯形成。
3.混凝土基础采用预制,在网架结构就位调顺后,其预留孔应用10号水泥砂桨封填严密。
4.电焊网用Φ4mm的低碳钢丝制造,并应符合《一般用途低碳钢丝》(YB/T5294-2009) 、《一般用途热镀锌低碳钢丝》(GB/T343-1994) 的规定。
5.隔离栅每隔24m间距设置一个斜撑,斜撑和抱箍焊接成整体。
6.立柱材料性能应符合GB700-2006,尺寸规格应符合GB6723-2008的规定。
7.施焊前,要求各单体矫正平直并去毛刺及锈迹。
8.焊接部位要求过度圆滑,无焊渣,虚焊,气孔等缺陷。
9.若遇土质疏松地段,混凝土基础坑要夯实处理后方可安装。

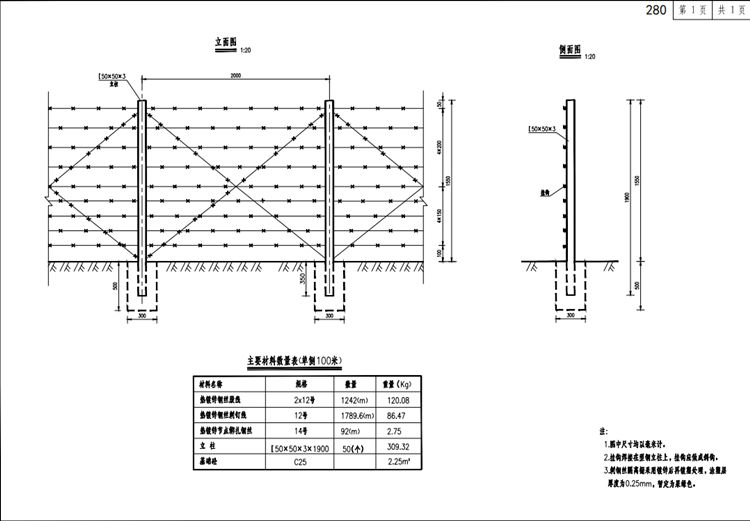
六、高速公路刺钢丝隔离栅详细说明
1.图中尺寸均以毫米计。
2.挂钩焊接在型钢立柱上,挂钩应做成斜钩。
3.刺钢丝隔离栅采用镀锌后再镀塑处理,涂塑层厚度为0.25mm,暂定为果绿色。

 


标签: