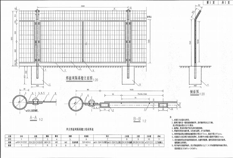
京沪高速公路焊接网隔离栅制作要求
更新日期:2022-12-06 点击量:

京沪高速公路焊接网隔离栅制作要求
1)、本图尺寸以毫米为单位。
2)、除网片钢丝为一般用途低碳钢丝外,所有钢材均为Q235钢,其力学性能应符合GB700要求。
3)、施焊前,要求各单体平直并去除毛刺及锈迹。
4)、焊接部位要求过渡光滑,无夹渣,无虚焊,无气孔等缺陷。
5)、构件焊接成型后的整体曲翘度横向不得大于7mm,纵向不得大于5mm。
6)、连接板与立柱及网片边框在组焊时,其对称中心的偏斜不得超过1mm。
7)、所有钢构件均应作热浸锌防腐处理,先镀锌再镀塑,镀锌层厚度详见设计说明,镀塑颜色为果绿色。
8)、网片钢丝采用镀锌钢丝,其力学性能须符合GB/T 343中对镀锌钢丝的相关要求,抗拉强度为295MPa~ 540MPa。
5.京沪高速公路焊接网隔离栅斜撑制造要求
1)、本图尺寸均以毫米计。
2)、斜撑用Q235钢做成,斜撑与立柱的焊接部位要求过渡光滑,无夹渣、无虚焊、无气孔。
3)、斜撑应作热浸锌防腐处理,先镀锌再镀塑,镀层厚度详见设计说明,镀塑颜色与立柱一致。
4)、隔离栅每三跨设置一斜撑。
上一篇:京沪高速公路焊接网隔离栅概述 下一篇:热浸镀锌静电喷涂钢筋网围界厂家
相关新闻
- 2025-02-18道路护栏的保护方法
- 2023-05-16广州绕城高速公路防眩网项目
- 2023-05-16宁夏高速公路焊接网隔离栅技术图纸支持
- 2023-05-16G331线布尔津至哈巴河公路刺钢丝隔离栅图纸
- 2023-02-25监狱刀刺网围墙生产厂家




