机场飞行区围界改造工程造价多少钱一米
更新日期:2022-12-26 点击量:

机场飞行区围界改造工程详细说明
一、机场飞行区围界改造工程设计依据
1.总图、场道专业提供的地势平整图。
2.《混凝土结构设计规范》( 2015年版) (GB 50010-2010) ;
3.《构筑物抗震设计规范》(GB50191-2012);
4.《建筑地基基础设计规范》(GB 50007-2011);
5.《建筑地基处理技术规范》(JGJ79-2012);
6.《民用机场飞行区技术标准》(MH 5001-2013) ;
7.《民用运输机场安全保卫设施标准》( MH/T7003-2017);
8.东北管理局关于营口机场飞行区围界改造项目初步设计及概算的批复[民航东北局函( 2019)57号];
9.机场现状资料。
二、机场飞行区围界改造工程基本数据
1.构筑物的安全等级为二级;
2.标准冻深1.10m;
3.地基基础设计等级丙级。
三、机场飞行区围界改造工程材料要求
1.钢材采用《碳素结构钢》(GB/T700-2006)规定的Q235B钢;钢筋网采用冷拉低炭钢丝电焊网,并经镀层防腐处理,要求防腐处理前的冷拉低炭钢丝直径不小于5mm,抗拉强度应达到390MPa,焊点抗拉力应达到1.50kN。
2.焊条采用E4303型电焊条,焊条性能应符合《非合金钢及细晶粒钢焊条》(GB5117-2012)的规定。
3.钢筋网冷拉低炭钢丝及其他构件的焊接部位要求饱满,不得有夹渣、气孔、咬肉、未焊透等缺陷。浸塑层必须均匀,不得存在针孔、流挂、裂纹.脱落、漏镀、脏物粘附等缺陷。焊缝质量检验应达到《钢结构工程施工质量验收规范》(GB50205-2012)所规定的二级标准要求。
4.金属表面先做热镀锌处理,镀层厚度:网片及连接件部分不小于120g/㎡ ,立柱及延伸臂部分不小于275g/㎡。涂塑层采用高附着力聚酯涂层,涂层厚度≥80μm ,涂塑工艺由内及外为富锌磷化、有机环氧涂层、热固性聚酯粉末涂层。
5.网片的焊接施工技术要求及质量应符合《钢筋焊接及验收规程》( JCJ18-2003) ;焊接施工技术要求及质量可参考《建筑钢结构焊接技术规程》( JCJ81-2002) ;钢筋网围界的防腐施工技术要求及质量可参考《公路交通工程钢构件防腐技术条件》( GB/T18226-2015) 。
6.混凝土采用C35混凝土,环境类别为3a类。
7.混凝土的基本要求:水胶比0.50,氣离子含量0.15% ,碱含量3.0kg/m³。
8.保护层厚度:基础梁35mm。
四、机场飞行区围界改造工程拆除并新建钢筋网围界
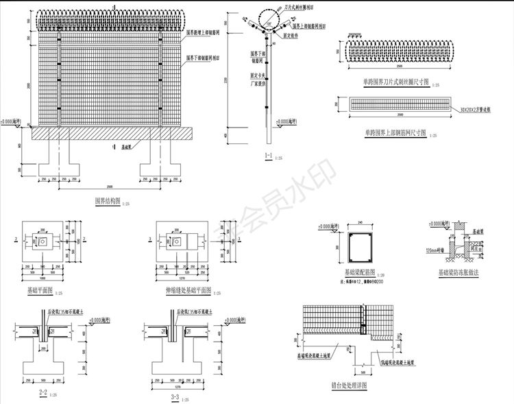
1.拆除并原址新建的围界具体位置及长度见总图,新建钢筋网围界高度为2.850米,立柱间距2.500米,下部钢筋网片利旧。
2.立柱及延伸臂均为圆钢管,外径60mm,壁厚3mm。
3.立柱顶部应加盖柱帽,立柱与钢筋网的连接采用防盗形式并经防腐处理。钢筋网围界的网片、立柱及延伸臂的防腐处理要求采用金属保护层结合涂塑保护层的复合保护方式。
4.新建钢筋网围界每30m设置一道伸缩缝。
五、机场飞行区围界改造工程现有钢筋网围界新增地梁及加高
1.新增地梁及加高的围界长度、位置见总图。
2.围界加高部分套管使用圆钢管,外径70mm,壁厚3mm。
3.围界加高部分的钢筋网片技术要求与新建钢筋网片一致。
六、机场飞行区围界改造工程地基与基础
1.假定平整后地坪标高为±0.000。
2.新建钢筋网围界基础采用素混凝土独立基础。
3.基础应落于处理后的压实填土上,要求压实填土承载力特征值不低于120kPa。
4.基坑回填应分层夯实,其中回填土不得含有生活垃圾或有机质废料,填土施工应对称、均匀,人工夯实每层厚度不大于250mm,机械夯实每层厚度不大于300mm,压实系数不低于0.94。
5.施工时应注意清除围界基础下部存在的淤泥质土,换填砂砾石或级配碎石,并对下部土基进行夯实,压实系数大于0.92。
七、机场飞行区围界改造工程施工事项
1.基础梁钢筋锚固采用植筋。
2.基础梁施工先植筋,待胶黏剂固化后方可进行下步施工,钢筋选用HRB400级钢筋。
3.本工程用植筋胶满足B级胶的要求,必须通过安全性检验及毒性检验,在不污染环境的同时不会产生对人体有害的挥发剂。
4.为保证植筋胶的材料质量,如需填料,则其填料必须在工厂制胶时添加,严禁在施工现场掺入。
5.钻孔深度为150mm,钻孔直径16mm ,钻孔完成后应采用压缩空气清孔,用金属毛刷刷三遍,吹三遍,确保孔壁无尘。
6.注胶时将搅拌头插入孔的底部开始注胶,逐渐向外移动,直至注满孔体积的2/3即可。
7.将备好的钢筋旋转着缓缓插入孔底,在规定的初凝时间内进行安装,使植筋胶匀地附着在钢筋的表面及缝隙中,待其规定的固化时间过后再进行焊接,绑筋等工作,不应采用将钢筋从胶桶中粘胶直接塞进孔洞的施工方法。
8.在规定固化时间内禁止扰动钢筋。
9.浇注基础梁混凝土前,应对旧混凝土表面进行凿毛处理。
10.施工时植筋表面的温度和湿度应满足产品说明书的要求。
11.围界立柱加高部分进行防锈处理,底漆采用环氧富锌底漆,面漆采用环氧防腐漆,颜色应与现有颜色相同,刷漆前应清除表面锈迹。
八、机场飞行区围界改造工程其他事项
1.本工程图示尺寸以毫米(mm)为单位,标高以米(m)为单位。
2.本专业须与总图、场道专业密切配合进行施工。
3.当沿围界纵向地势有变化时,需根据需要进行错台,每相邻网扇之间错台不得大于150毫米。
4.结构其纵向受力钢筋采用普通钢筋时,钢筋的抗拉强度实测值与屈服强度实测值的比值不应小于1.25;钢筋的屈服强度实测值与屈服强度标准值的比值不应大于1.3,且钢筋在拉力下的总伸长率实测值不应小于9%。
5.钢筋的强度标准值应具有不小于95%的保证率。
6.在施工中,当需要以强度等级较高的钢筋代替原设计中的纵向受力钢筋时,应按照钢筋受拉承载力设计值相等的原则换算,并应满足配筋率要求。
7.未尽事宜按现行规范进行施工。
8.围界制作与施工的各项要求应严格按照<民用航空运输机场安全保卫设施标准> (MH/T7003)执行。
9.施工中若有网片掉漆等现象应注意补漆,防止钢结构锈蚀。
10.图中未注明的角焊缝焊脚尺寸均为3mm。
11.围界整体防腐年限至少应达到8年。
12.围界施工完成后应将剌丝滚笼按照间距不大于200mm重新布置,长度不足时应额外购置,使全部围界上部均有刀片剌丝式滚笼,具体长度按现场实际发生为准。
13.围界外部警示牌应按照间距不大于150m重新布置,数量不足时应额外购置 ,数量以现场实际发生为准。
14.围界高度改造及新增地梁施工时,可将上部钢筋网片拆除后进行作业,结束后将钢筋网片重新安装牢固。
相关新闻
- 2025-02-18道路护栏的保护方法
- 2023-05-16广州绕城高速公路防眩网项目
- 2023-05-16宁夏高速公路焊接网隔离栅技术图纸支持
- 2023-05-16G331线布尔津至哈巴河公路刺钢丝隔离栅图纸
- 2023-02-25监狱刀刺网围墙生产厂家




