框架式移动围栏价格多少钱
更新日期:2023-01-30 点击量:
框架式移动围栏相关介绍

一、框架式移动围栏说明
车间内现场高压试验区域及试验系统的危险部位安全围栏设置。
二、框架式移动围栏参考标准
JB/T9705-1999 围栏 GBJ205;JB/T51068-1999;JB/7138.4-1993。
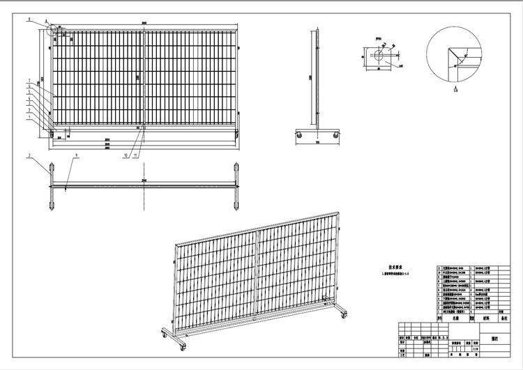
三、框架式移动围栏技术要求
1.框架围栏外框采用焊接方管40mmX40mm壁厚不小于2.75mm的管材和网片拼装结构及底部安装移动式3寸橡胶静音带刹车万向轮制作。(底部支撑架采用焊接方管40mmX40mm);
2.外框尺寸:长3000mm高1750mm;
3.网片尺寸:长2940mm高1550mm;
4.网孔:60X50mm;
5.丝径: 4.0mm;
6.防腐处理:喷塑,浸塑; .
7.网的纬线31根,自上而下相邻两纬线间距50mm,网的经线4根,经线相邻间距60mm;
8.框架涂装四周表面采用红黄相间醒目警示颜色,框架防锈底漆一道,二道面漆红色部分长200mm、黄色部分长200mm双色相间;
9.围栏单边上下各装活扣一个,用于围栏间的相互连接;
10.在底部钢构件上焊接Φ16mmX30mm圆钢,钢柱不涂油漆便于接地线连接;
11.按图纸施工验收。
四、框架式移动围栏用途
适用于车间内大长度高压海缆耐压试验安全防护及高压海电缆试验辅助附件。
上一篇:铁路编织网防抛网价格多少钱一米 下一篇:钢板网隔离栅价格多少钱一米
相关新闻
- 2025-02-18道路护栏的保护方法
- 2023-05-16广州绕城高速公路防眩网项目
- 2023-05-16宁夏高速公路焊接网隔离栅技术图纸支持
- 2023-05-16G331线布尔津至哈巴河公路刺钢丝隔离栅图纸
- 2023-02-25监狱刀刺网围墙生产厂家




