京式道路护栏价格多少钱
更新日期:2023-02-01 点击量:

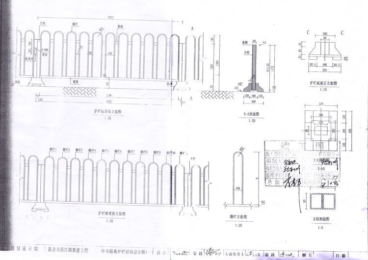
1、本图京式道路护栏尺寸单位以毫米计算。
2、本图中京式道路护栏标准段(h=1.30m),适用于标准直路段;京式道路护栏渐变段(h=1.30m~0.65m)固定为4片护栏,是标准段到结束的部分。渐变段除栅栏、立柱的高度外,其它规格均与护栏标准段一致。
3、京式道路护栏立柱采用四条6.3热轧槽钢拼焊成型。
4、京式道路护栏片采用圆钢、扁钢与槽钢焊接成型,成片除锈、热镀锌处理后, 表面烘喷白色面漆;护栏焊接需平整、满焊,焊缝不得有气孔、夹渣和未悍透等缺陷。焊口应打磨平整,表面不得有裂缝,成型均匀、圆滑。漆膜应平滑,不得有流挂或起泡现象。
5、京式道路护栏底座采用铸铁单独制作成型,安装时立柱插入底座。
6、京式道路护栏反光片用螺栓固定在立柱上,每三片护栏安装一片反光片。
7、京式道路护栏含渐变段全长82米,渐变段24米。
8、两端各设置两个防撞筒。
9、本图京式道路护栏适合滨江路两座桥中央分隔带,K1+754与K2+210。
上一篇:热镀锌浸塑焊接网隔离栅生产厂家 下一篇:监狱Y型安全防御护网生产厂家
相关新闻
- 2025-02-18道路护栏的保护方法
- 2023-05-16广州绕城高速公路防眩网项目
- 2023-05-16宁夏高速公路焊接网隔离栅技术图纸支持
- 2023-05-16G331线布尔津至哈巴河公路刺钢丝隔离栅图纸
- 2023-02-25监狱刀刺网围墙生产厂家




