驱动站防护栏技术参数及要求
更新日期:2023-02-02 点击量:

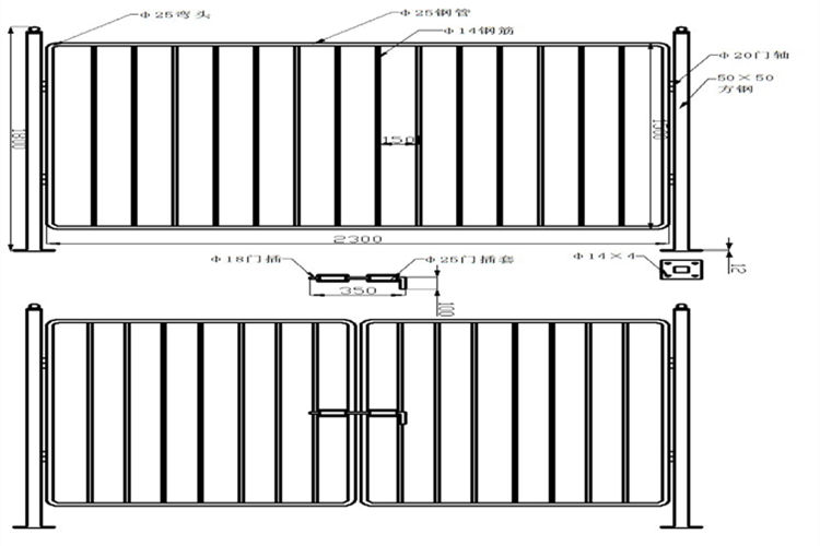
驱动站防护栏技术参数及要求:
1、此配件为地面生产系统M102、M402、M602、M608、M301、M814驱动站防护栏;
2、驱动站防护栏外框是外径φ25钢管,壁厚不得低于3mm,四角都为φ25弯头;
3、驱动站防护栏内拉筋为φ14钢筋;
4、驱动站防护栏立柱为50×50方钢,壁厚不得低于4mm;
5、每个驱动站防护栏需配有1800mm立柱一根,φ20门轴2对,铁艺方形堵头1个,立柱预埋件1块;
6、立柱预埋件厚度不得低于12mm,长宽:150mm,四角打孔φ14mm,共4个;
7、Φ20门轴需选用钢材,门式防护栏门轴凹槽内需设有滚珠,且所有门轴凹槽侧需安装于门柱侧,避免滚珠掉落,且门轴长度不得低于80mm;
8、655.5平方米驱动站防护栏中共有33个门式防护栏;
9、除铁艺方形堵头外,其余部位全部喷为中黄色,先进行除锈处理,然后上防锈漆,后喷中黄色;
10、驱动站由于大小不一,局部位置偏小,无法放置2.3m长防护栏,请以现场为准。
11、驱动站防护栏供货时还需配有足够数量的M12×50膨胀螺栓;
12、门式防护栏还需配有φ18门插,350mm×100mm,且门插轴与套公差不得大于0.2mm;供货时除φ20门轴的凸轴无需焊接外,其余需成品供货。
上一篇:铁路线路方钢立柱金属网片栅栏 下一篇:高速公路防眩网设计要求及参数说明
相关新闻
- 2025-02-18道路护栏的保护方法
- 2023-05-16广州绕城高速公路防眩网项目
- 2023-05-16宁夏高速公路焊接网隔离栅技术图纸支持
- 2023-05-16G331线布尔津至哈巴河公路刺钢丝隔离栅图纸
- 2023-02-25监狱刀刺网围墙生产厂家




