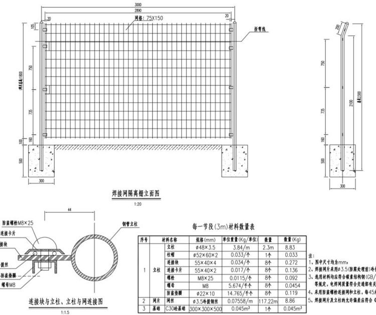
焊接网隔离栅技术要求和参数设计
更新日期:2023-02-25 点击量:

一、焊接网隔离栅技术要求
1、图中焊接网隔离栅尺寸均为mm。
2、焊接网隔离栅网片采用Φ3.5(防腐处理前)冷拉钢丝焊接而成,金属外露部分均浸塑。
3、焊接网隔离栅选用材料均应符合碳素结构钢(GB/T 700-2006)和一般用途低碳钢丝(YB/T 5294- 2009)等规定,电焊网质量符合交通部有关规定。
4、焊接网隔离栅采用防盗螺栓连接网和立柱,每45米或转向处安装一个斜撑,斜撑为厂家配套生产。
5、焊接网隔离栅网片及立柱的允许偏差应符合《隔离栅》GB/T 26941- 2011的要求。
二、焊接网隔离栅设计参数
1、立柱,Φ48*3.5mm;
2、柱帽,Φ52*60*2mm;
3、连接边耳,55*40*4mm钢板;
4、螺栓,M8*25;
5、螺母,M8;
6、防盗垫圈,Φ22*10;
7、网丝,Φ3.5mm冷拔钢丝;
8、网格,75*150mm竖长孔;
9、立柱基础,300*300*500砼基础。
上一篇:码头围栏网生产厂家及图纸范例 下一篇:围合填埋场防飞散防护网设计要求
相关新闻
- 2025-02-18道路护栏的保护方法
- 2023-05-16广州绕城高速公路防眩网项目
- 2023-05-16宁夏高速公路焊接网隔离栅技术图纸支持
- 2023-05-16G331线布尔津至哈巴河公路刺钢丝隔离栅图纸
- 2023-02-25监狱刀刺网围墙生产厂家




