您好!欢迎访问安平县秉德丝网制品有限公司网站!
logo

当前位置:网站首页 > 新闻动态新闻动态

桥梁防落物网

更新日期:2021-12-23  点击量:

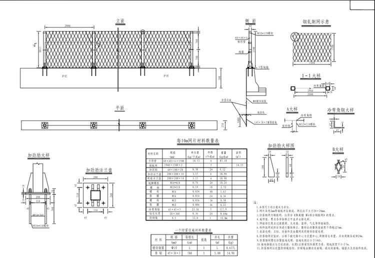
一、桥梁防落物网设计要求

1.本图尺寸均以毫米为单位。

2.网片采用2mm厚钢板冲压制成,网孔应不大于20 x 20mm。

3.防落物网为钢板网,应符合《隔离栅第6部分钢板网》的要求。

4.施焊前,要求各单体矫正平直并去除毛刺。

5.焊接部位要求过渡圆滑、无夹缝、虚焊、气孔等焊接缺陷。

6.构件组焊成形后须进行整体矫正,整形后的整体扭曲度不得超过7mm。

7.表面处理:立柱、连接件及金属网采用镀锌防腐处理。

8.防落物网安装时,以桥下被交路中心为设置中心,两侧等长布置,并向两侧各延伸20m。

9.防落物网需设防雷接地处理,接地电阻应小于10Ω。

10.接地钢筋应与立柱连接,长度L以桥梁实际高度为准,埋地深度不小于5m。

11.防落物网应设置防倾绳结构,防倾绳由横向连接绳、纵向连接绳、锚固点及连接件组成。

二、每10米桥梁防落物网材料数量

1、方形管,60*60*6*1500mm,6个;

2、钢板网网片,1500*1940mm,2个;

3、加强肋,60*100*20mm,24个;

4、加劲法兰盘,200*200*10mm,6个;

5、底座法兰盘,200*200*10mm,6个;

6、冷弯角钢,45*45*5mm,5个。

上一篇:金属网围栏    下一篇:码头围栏