您好!欢迎访问安平县秉德丝网制品有限公司网站!
logo

当前位置:网站首页 > 技术支持技术支持

护栏厂家出口隔离栏勾花网,编织网围栏带底座,镀锌铁丝网栅栏

更新日期:2022-09-06  点击量:

说明:

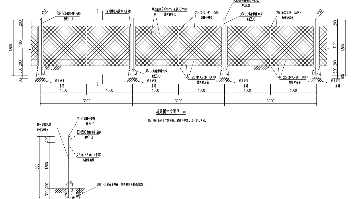
1.本图尺寸以毫米为单位。

2.护栏的钢构件均应作防腐处理,先镀锌再镀塑。防腐处理均应满足《高速公路交通工程钢构件防腐技术条件》(GB/T18226-2000)和《隔高栅》(GB/T 26941.1-2011)的规定。螺栓、螺母等紧固件和连接件在防腐处理后,必须清理螺纹或进行离心分高处理。护栏表面不得有气泡、裂纹、疱痕、折叠和端面分层等缺陷。

3.网片采用编织网,采用一般用途低碳钢丝,力学性能应符合钢丝丝径为φ4+ 0.05,网孔规格为150mmx75mm,质量标准应符合《隔高栅》(GB/T 26941.5-2011);

4.钢管立柱柱端应如柱帽,立柱与柱帽要连接牢固紧密。

5.网片安装时,框架应与立柱连接牢固,框架整体平顺性良好。

6.每三跨至少加一斜撑,斜撑为矩形管30*20*4Q235A),长度为3m,成45度设置。


标签: