河北厂家定制武夷立交桥防抛网 镀锌网片钢丝 角钢高速公路护栏
更新日期:2022-09-12 点击量:

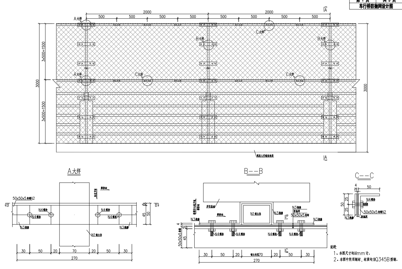
说明:
1.本图尺寸均以mm计。
2.本图中所用钢材,材质均为Q345B型钢,并进行镀锌处理。
3.厂家施工时注意在N2、N3、N5及N6钢板中相应位置预留螺栓孔。
4.图中M10螺栓性能等级为8.8级。
5.图中参数t表示钢板的厚度,单位为mm。
6.现场施工过程应采取有效的防护措施,防止施工构件等其他物品落入桥下行车限界中。

相关新闻
- 2025-02-18道路护栏的保护方法
- 2023-05-16广州绕城高速公路防眩网项目
- 2023-05-16宁夏高速公路焊接网隔离栅技术图纸支持
- 2023-05-16G331线布尔津至哈巴河公路刺钢丝隔离栅图纸
- 2023-02-25监狱刀刺网围墙生产厂家




