您好!欢迎访问安平县秉德丝网制品有限公司网站!
logo

当前位置:网站首页 > 技术支持技术支持

厂家供应三角折弯护栏网,河道水库围栏,桃型立柱浸塑,引江济淮

更新日期:2022-09-22  点击量:

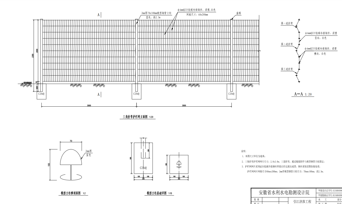
引江济淮三角折弯护栏网图纸说明:

1.本图尺寸单位为毫米

2. 三角折弯护栏网网片尺寸:2.0x3.0m,三道折弯,通过链接附件与桃型钢管立柱固定;

3.护栏网网片采用Q235低碳冷拔钢丝焊接后经过液压成型,钢丝采取浸塑防腐处理,护栏网网片网格尺寸60mmx200mn,2mm厚桃型钢管立柱尺寸:70mmx100mm,高2.3m


标签: