京沪高速公路焊接网隔离栅设计要点
更新日期:2022-12-06 点击量:

2.京沪高速公路焊接网隔离栅设计要点
2.1京沪高速公路焊接网隔离栅
2.1. 1京沪高速公路焊接网隔离栅的设置原则
本项目沿线除在天然屏障(河流、与其他道路立体交叉、通道等)以外,全线设置隔离栅(含旱桥);每段隔离栅的起终点或隔离栅需要断开的地方,应做出端头围封设计。
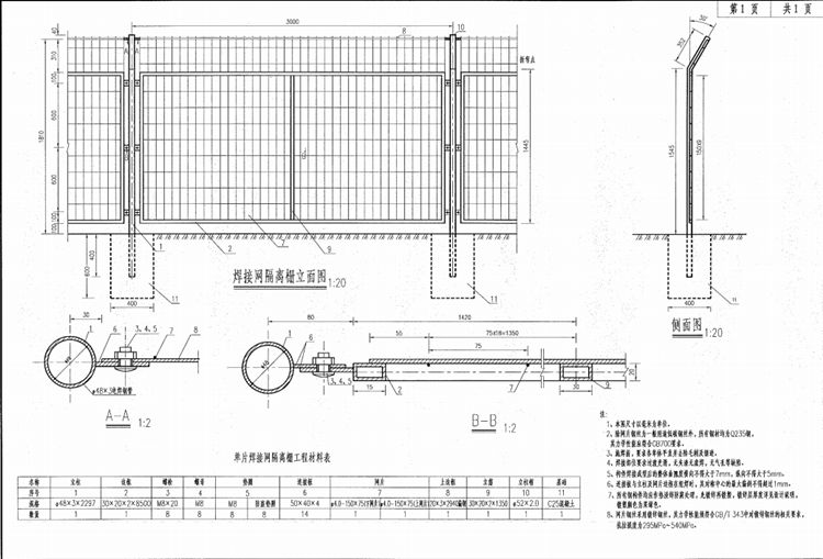
1、本项目全线设置焊接片网隔离栅,立柱间距3m,网片钢丝直径为4mm。
2、隔离栅的设置原则如下:
1)道路沿线两侧符合下列条件之一者,可不设置隔离设施。
➢路侧有水渠等天然屏障,将来不用担心有人畜进入和非法侵占的区段。
➢桥梁(含高架桥)、通道等构造物,但桥头、洞口需要与路堤(堑)隔离设施连接封死。
2)沿公路用地界以内设置的隔离设施,在遇桥梁、通道、隧道时,应朝桥头锥坡(或端墙)方向围死,不能留有人畜可以钻入的空隙。
3)由于地形方面的原因,隔离设施前后不能连续设置的地方,就以该处作为隔离设置的端部,并处理好端头的围封。
4)沿公路用地边界地形起伏较大、隔离设施不易施工的路段,可根据需要设置成一系列斜坡过渡的形式。
2.1. 2京沪高速公路焊接网隔离栅的设置位置
隔离栅设置于公路用地界内侧0. 3米处,地形有起伏时,片网隔离栅按阶梯形设置:片网隔离栅遇到≤3米的沟渠或涵洞时,可直接跨过,但在跨跃处需设置异形网片,防止人或动物由此进入。每段隔离栅的起终点或隔离栅需要断开的地方,应针对不同的情况做端头围封,在隔离栅需改变方向的地方,应做拐角处理。
焊接网隔离栅的钢构件均应采用热浸镀锌浸塑复合涂层进行防腐处理。热浸镀锌合金浸塑复合涂层由热浸镀锌内涂层和流化床浸塑外涂层组成,浸塑后的颜色为果绿色。为保证钢构件内涂层和外涂层的总体质量,热浸镀锌所用的锌应为符合《锌锭》(GB/T 470- 2008)中所规定的Zn99. 995或Zn99. 99牌号,各涂层实施完比后应符合《公路交通工程钢构件防腐技术条件》(GB/T 18226- 2015)中相关要求的规定。
相关新闻
- 2025-02-18道路护栏的保护方法
- 2023-05-16广州绕城高速公路防眩网项目
- 2023-05-16宁夏高速公路焊接网隔离栅技术图纸支持
- 2023-05-16G331线布尔津至哈巴河公路刺钢丝隔离栅图纸
- 2023-02-25监狱刀刺网围墙生产厂家




