您好!欢迎访问安平县秉德丝网制品有限公司网站!
logo

当前位置:网站首页 > 技术支持技术支持

聚酯复合浸塑电焊网隔离栅生产厂家

更新日期:2022-12-06  点击量:

聚酯复合浸塑电焊网隔离栅生产厂家
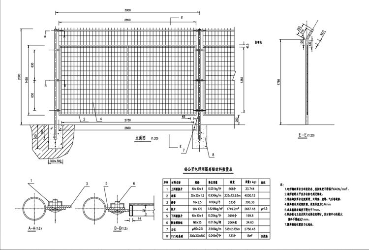
1.电焊钢丝要求为冷拔状态,抗拉强度不得低于640N/㎡。
2.施焊前矫正平直并去除毛刺及锈迹。
3.焊接部位要求过渡圆滑,无焊渣、 虚焊、气孔等缺陷。
4.隔离栅采用浸塑防腐,浸塑层度为0.6mm
5.成品整体曲翘度不得大于7mm
6.联接板与立柱及网片边框在组焊时,其对称中心的偏斜不得超过1mm
7.隔离栅的位置位于红线处。
8.大门需由专业钢结构厂家制作, 制作、安装等,以现行国家相关技术规范为准。大门设置宽度根据现场实际情况及建设各方协商意见确定。要求大门立柱基底地基承载能力≥150KPa


标签: