焊接网防落物网生产制造厂家
更新日期:2022-12-07 点击量:

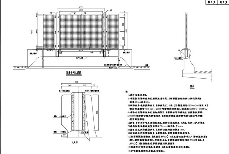
焊接网防落物网技术规范要求
1.本图尺寸以毫米为单位。
2.立柱钢管与钢板焊接时要求满焊,立柱钢管与主梁钢板、N1加劲板与立柱钢管均应先顶紧后焊接, N1加劲板应按R=30mm圆切角考虑。
3.施焊前,要求各单体平直并去除毛刺及锈迹,焊接部位要求过渡光滑,无夹渣,无虚焊,无气孔等缺陷。
4.构件焊接成型后的整体曲翘度横向不得大于7mm,纵向不得大于5mm。
5.连接板与立柱及网片边框在组焊时,其对称中心的偏斜不得超过1mm。
6.焊接钢丝要求冷拔状态,抗拉强度不低于640N/mm²。
7.防落物网须做防雷接地处理,接地电阻应小于10Ω。测量防落物网防雷接地电阻小于10Ω为合格,若大于10Ω,则应在桥头适当位置增打接地极以满足电阻要求。
8.混凝土护栏中预埋钢管Φ114X4、钢板Φ114X4、接地扁钢及锚固钢筋计入桥梁工程量中。
上一篇:桃型柱桥梁防抛网生产厂家 下一篇:镀锌喷塑隔离网生产厂家
相关新闻
- 2025-02-18道路护栏的保护方法
- 2023-05-16广州绕城高速公路防眩网项目
- 2023-05-16宁夏高速公路焊接网隔离栅技术图纸支持
- 2023-05-16G331线布尔津至哈巴河公路刺钢丝隔离栅图纸
- 2023-02-25监狱刀刺网围墙生产厂家




