桃型柱桥梁防抛网生产厂家
更新日期:2022-12-07 点击量:

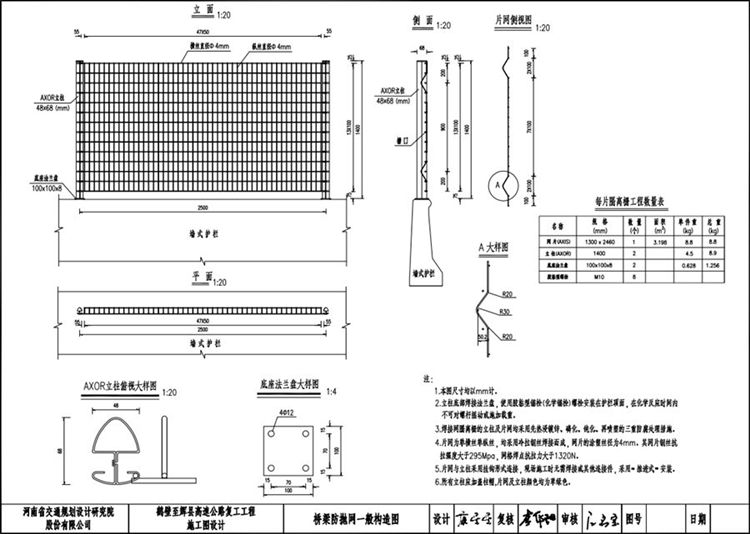
一、桃型柱桥梁防抛网设计要求
1.本图尺寸均以mm计。
2.立柱底部焊接法兰盘,使用胶粘型锚栓(化学锚栓)螺栓安装在护栏顶面,在化学反应时间内不可对螺杆摇动或施加载重。
3.焊接网隔离栅的立柱及片网均采用先热浸镀锌、磷化、钝化、再喷塑的三重防腐处理措施。
4.片网为单横丝单纵丝,均采用冷拉钢丝焊接而成,网片的涂塑丝径为4mm。其网片钢丝抗拉强度大于295Mpa ,网格焊点抗拉力大于1320N。
5.片网与立柱采用挂钩形式连接,现场施工时无需焊接或其他连接件,采用“ 推进式"安装。
6.所有立柱应加盖柱帽,片网及立柱颜色均为草绿色。
二、桃型柱桥梁防抛网一般参数
1、立柱,48*68mm;
2、网丝,4.0mm;
3、网格,50*100mm;
4、外形尺寸,1400*2500mm;
5、立柱底板,100*100*8mm;
6、表面处理,热镀锌喷塑草绿色。
上一篇:钢丝网围栏生产制造厂家 下一篇:焊接网防落物网生产制造厂家
相关新闻
- 2025-02-18道路护栏的保护方法
- 2023-05-16广州绕城高速公路防眩网项目
- 2023-05-16宁夏高速公路焊接网隔离栅技术图纸支持
- 2023-05-16G331线布尔津至哈巴河公路刺钢丝隔离栅图纸
- 2023-02-25监狱刀刺网围墙生产厂家




